首页
关于赫希斯
产品中心
市场领域
合作客户
企业风采
专利证书
技术指引
联系赫希斯
在线留言
生产车间
首页
返回
产品中心
XT-MVY
信息详细
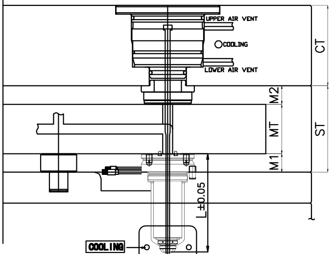
结构特点:
镶铜套加热针阀咀,加热均匀.
可带浇口套,及运水套.
可配时序器,独立调控各咀进胶时间.
应用案例:
中兴公司机顶盒产品:PC防火料,
白色黑色,产品表面高光或蚀细纹,倒装模热咀
上一页:
TV类热流道系统
下一页:
XT-MVY
电话:
076982581168
邮件
地图
分享
留言
东莞市赫希斯热流道注塑系统有限公司 版权所有
多腔热流道系统
整体式针阀系统
热咀
双层封胶热咀
温控箱时序器
硅胶冷流道咀
热流道配件